
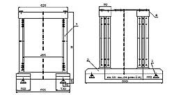
Открытые стойки серии SRP предназначены для установки 19″ оборудования, не
требующего дополнительных защитных монтажных корпусов, либо использующегося
в помещениях с хорошей вентиляцией. Стойка состоит из двух сварных 19″ рам,
привинченных непосредственно к опорам. В основании имеются отверстия для
фиксации стойки к полу с помощью анкерных болтов. Расстояние между рамами
стойки варьируется с шагом в 50 мм. Обе опоры основания оснащены ножками с
регулируемой высотой или роликами (поставляются отдельно). В комплект
поставки входит набор соединительных элементов для скрепления рам в верхней
части стойки с целью придания дополнительной прочности всей конструкции
открытой стойки.
Описание базовой конструкции стоек серии SRP

Конструкция
1. Рама
2. Основание
3. Ножки с регулируемой высотой (или ролики)
4. Комплект соединительных элементов
Высота основания H1
Ножки с регулируемой высотой — от 25 до 50 мм
Ролики — тип 150 — 108 мм
Примечание: Стандартная конструкция стоек серии SRP предполагает
использование ножек с регулируемой высотой. Ролики поставляются отдельно.
Технические характеристики
Материал:
Листовая сталь 2.00 мм
Максимальная нагрузка:
Для стоек высотой более 24U необходимо установить как минимум одну полку в середине конструкции для дополнительной фиксации глубины стоек.
Отделка поверхности:
Поверхности окрашены порошковой серой краской RAL 7035. Заказ стоек любого
другого цвета по каталогу RAL предварительно согласовывается с отделом
продаж.
Сводная таблица моделей стоек серии SRP
| Номер модели | Номер модели в каталоге | Высота H [mm] |
Высота рабочего пространства HU [U=44,45mm] |
| 1 | SRP-001 | 1223 | 24U |
| 2 | SRP-002 | 1757 | 36U |
| 3 | SRP-003 | 1846 | 38U |
| 4 | SRP-004 | 2023 | 42U |
| 5 | SRP-005 | 2157 | 45U |
